2 bedroom
1 bathroom
656.60 sq ft (61 sq m)
2 bedroom
1 bathroom
656.60 sq ft (61 sq m)
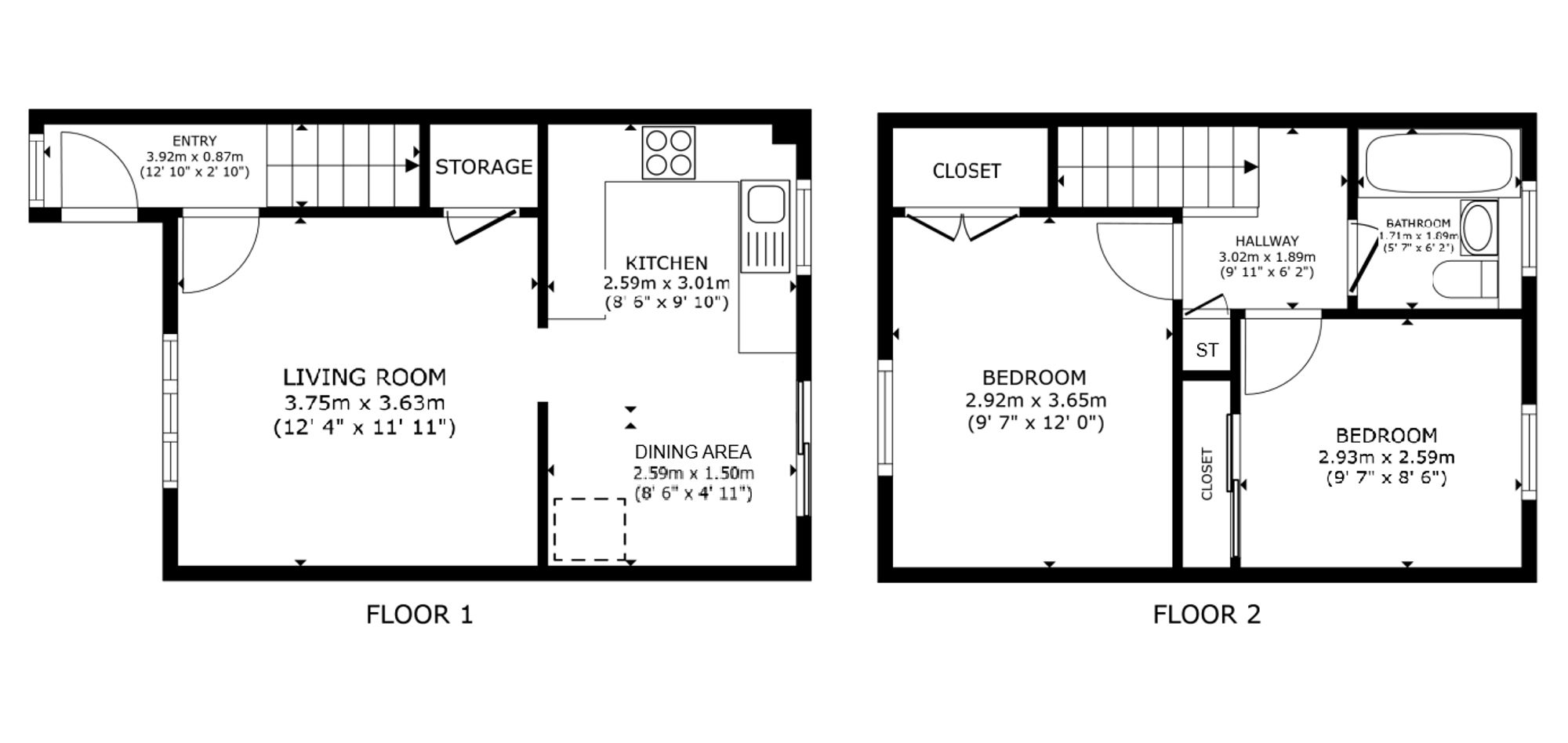
Located in the quiet village of Greenloaning, this attractive two-bedroom semi-detached home offers a perfect blend of modern comfort and easy maintenance. Beautifully presented throughout, the property features bright, contemporary décor, an upgraded kitchen and bathroom, and a spacious private garden – ready for a new owner to move straight in and enjoy.
On the ground floor, the welcoming entrance hallway opens into a bright and inviting living room, featuring laminate flooring, a tasteful feature wall and a useful built-in storage cupboard. This is a comfortable space to relax or entertain, with a large window allowing plenty of natural light to flood in.
To the rear, the modern kitchen has been thoughtfully designed with crisp white units, coordinating grey laminate worktops and classic white metro splashback tiling. There is an electric oven and hob, and there is space for freestanding appliances such as a dishwasher, washing machine and fridge freezer. There’s ample space for dining, and sliding glazed doors open directly onto the rear garden, creating a lovely connection between the indoor and outdoor spaces.
Upstairs, the first floor provides two bedrooms and a stylish modern bathroom. Both bedrooms are bright and well proportioned, offering pleasant outlooks over the surrounding area. The bathroom is fully tiled and fitted with a shower over the bath, complemented by a sleek white vanity unit for storage.
Externally, the rear garden is mainly laid to lawn and includes a large shed or summerhouse, offering both practical storage and a spot for relaxing in the warmer months. To the front, there is private off-street parking for one car on the property’s driveway.
Additional features include oil-fired central heating via a Worcester boiler and double glazing throughout, ensuring the home is warm and energy-efficient year-round.
With a Gross Internal Floor Area of approximately 60m², this is a manageable and inviting home that’s ready to move into, offering a perfect balance of modern style and peaceful rural living.
What the current owners loved most
The owners have loved the friendly atmosphere in Greenloaning and the quiet setting of the house. They’ve particularly enjoyed how bright the property feels throughout the day and how the kitchen doors open straight out into the garden – perfect for morning coffee or summer barbecues.
Summary
· Semi-detached two-bedroom home in Greenloaning
· Bright living room with feature wall and storage
· Modern kitchen with dining space and doors to garden
· Stylish bathroom with shower over bath
· Oil-fired Worcester central heating and double glazing
· Rear garden with lawn, playhouse and large shed/summerhouse
· Off-street parking on private driveway
· Peaceful village location with easy motorway access
· Approximate Gross Internal Floor Area: 60m²
· EPC: C (74)
· Council Tax: Band D




















