2 bedroom
1 bathroom
1 reception
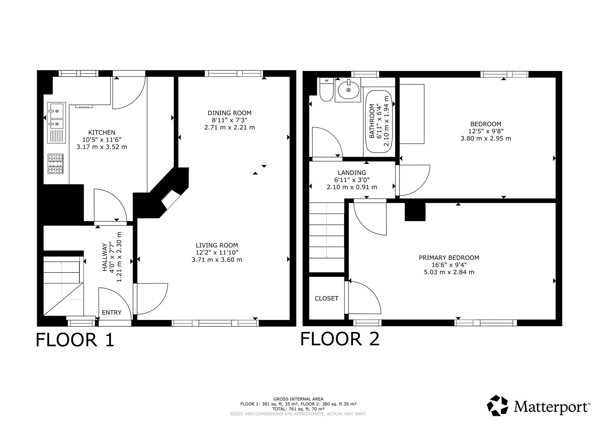
753.47 sq ft (70 sq m)
2 bedroom
1 bathroom
1 reception
753.47 sq ft (70 sq m)
This two bedroom end terrace home is set within the popular village of Deanston, near Stirling, and enjoys open park and countryside views from the main living space. Offering generous room sizes and a private garden, the property will appeal to a range of buyers including first time purchasers and those looking to downsize.
The living room is a bright and welcoming space featuring a wood burning stove, creating a cosy focal point and an inviting space to relax with ample room for both lounge and dining furniture. It takes full advantage of the open outlook across the park and countryside, creating a pleasant backdrop throughout the year. The proportions allow for flexible furniture arrangements, making it easy to tailor the space to suit individual needs.
The fresh, white kitchen includes an electric oven, ceramic hob, fridge freezer and a washing machine. There is plenty of worktop space and natural light, providing a practical and functional area for everyday cooking. A door opens directly to the private garden, making it easy to enjoy outdoor dining and relaxing with friends and family.
Upstairs, there are two very spacious double bedrooms. Both rooms offer excellent floor space, easily accommodating double beds along with additional storage furniture.
The bathroom is fitted with a neutral suite and includes an electric shower over the bath.
Heating is provided via oil central heating and furniture in the living/dining area and upstairs can be negotiated separately.
Externally, the property benefits from private gardens to both the front, side and rear, offering excellent outdoor space with lovely open aspects.
To the front, the home is approached via a gated entrance with a pathway and steps leading to the main door.
The rear garden enjoys an elevated position with open views across the park and surrounding countryside. A patio and gravelled seating area provide an ideal spot for outdoor dining and entertaining, complete with space for garden furniture. Steps lead down to a lawned area, with gate access on to the park behind. The garden also includes a timber shed and additional space for composting or storage, with fencing to the boundaries enhancing privacy.
What the Current Owners Loved Most
The current owners have particularly enjoyed the peaceful countryside views from the dining area and the sense of space provided by the generous bedroom sizes. They have also appreciated the friendly community feel within the village.
Summary
Two bedroom end terrace home
Living room with log burner and dining area with countryside views
Kitchen with electric oven, ceramic hob, fridge freezer and washing machine
Two spacious double bedrooms
Bathroom with electric shower over the bath
Private garden with access on to the park behind
Village location within easy reach of Stirling
EPC: Band D
Council Tax: Band A



















